施設案内
災害時にも、14日間止まらない。
比類なき高機能オフィス。
ライラックスクエアを支えるふたつの柱は「安心・安全」と「快適性」です。
環境性能だけではなく、災害時の備えやBCP対策に至るまで。
すべては安全・安心・快適な環境をオフィスワーカーに提供するために。
新たなコミュニティを形成する「職場」であり、週末は家族と訪れたくなる「場所」となる新時代のランドマークです。
-
POINT 01
断水対策
万が一断水が発生した場合でも、事業継続に必要な飲み水を確実に供給できるよう、井戸水を使用して飲料水を確保しています。
また、非常時にも安心して過ごしていただけるように、緊急用の排水槽を用意し、上下水の利用を14日間維持できる体制を整えています。
このシステムにより、予期せぬ災害やトラブルが起こった場合でも、利用者の皆さまの使用に支障をきたさないような設計になっています。
-
POINT 02
免震構造・防災備蓄
免震装置で地震の揺れを吸収し、建物の耐震性を大きく向上させる構造形式。安心と安全を重視した設計により、希少性の高いオフィスビルです。各階には防災備蓄倉庫を完備しており、災害時にも必要な物資を迅速に取り出しが可能。入居者が安心して過ごせる安全性の高い環境を提供します。
-
POINT 03
LEEDゴールド認証(予定)
国際的に最も広く普及した環境性能評価システムであり、その高い基準を満たした本建物に入居することで、企業イメージの向上や従業員の快適性向上、コスト削減、ESG評価の強化、優秀な人材確保、環境規制への適応など、さまざまなメリットを得られます。
※LEED Leadership in Energy and Environmental Design
館内図
会議室一覧
単体での利用
01
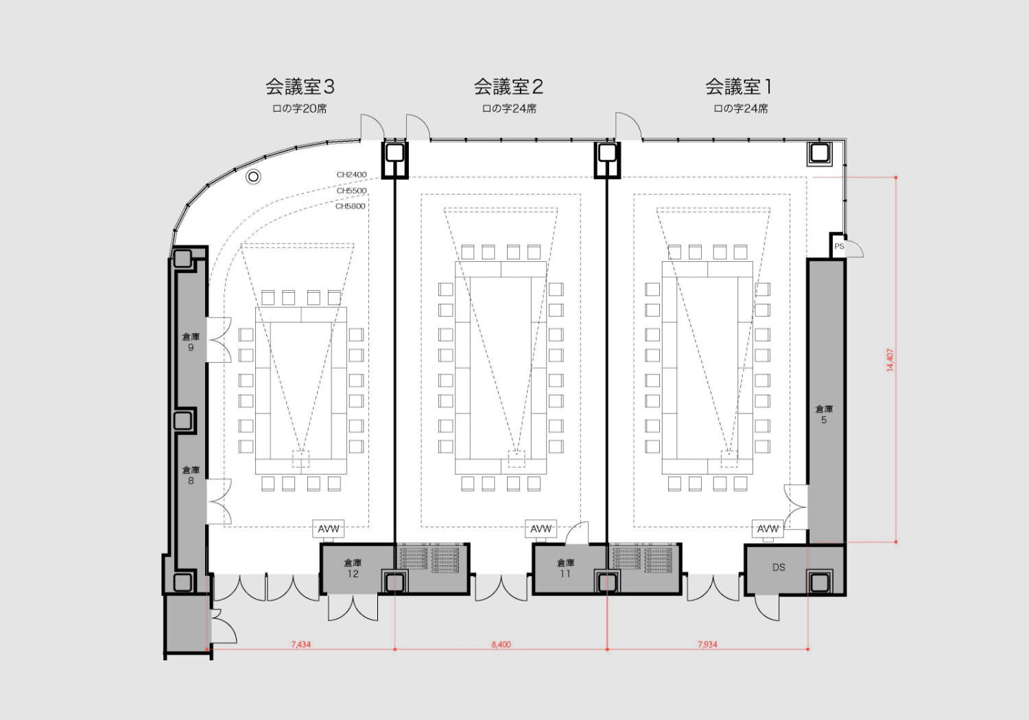
会議室1
- 面積:137㎡
- 天井高:5.8m
-
拡大する
ロの字形式:24席
-
拡大する
スクール形式:36席
-
拡大する
シアター形式:90席
閉じる
閉じる
閉じる
02
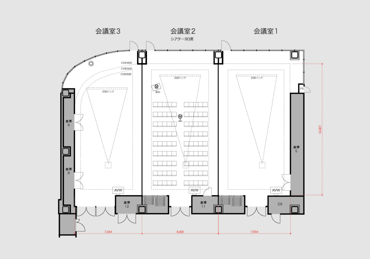
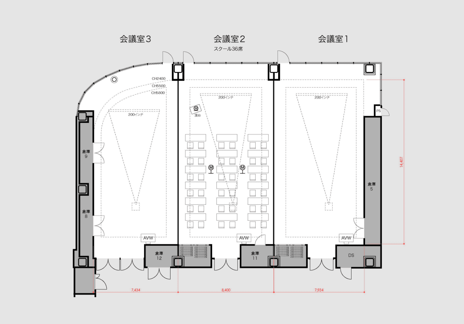
会議室2
- 面積:138㎡
- 天井高:5.8m
-
拡大する
ロの字形式:24席
-
拡大する
スクール形式:36席
-
拡大する
シアター形式:90席
閉じる
閉じる
閉じる
03
会議室3
- 面積:123㎡
- 天井高:5.8m
-
拡大する
ロの字形式:20席
-
拡大する
スクール形式:30席
-
拡大する
シアター形式:80席
閉じる
閉じる
閉じる
1+2
会議室1+会議室2
- 面積:275㎡
- 天井高:5.8m
-
拡大する
スクール形式:72席
-
拡大する
シアター形式:138席
閉じる
閉じる
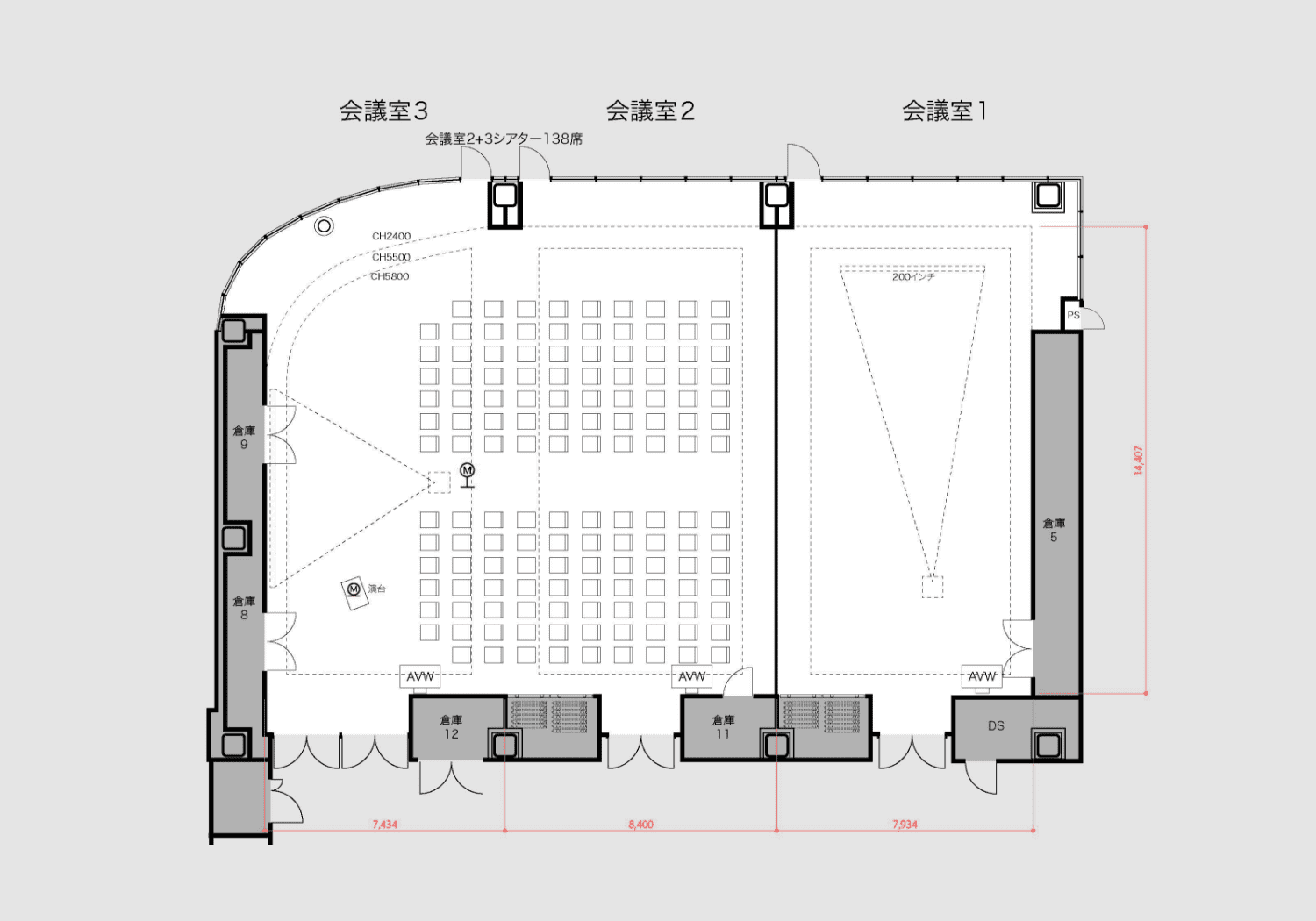
2+3
会議室2+会議室3
- 面積:261㎡
- 天井高:5.8m
-
拡大する
スクール形式:72席
-
拡大する
シアター形式:138席
閉じる
閉じる
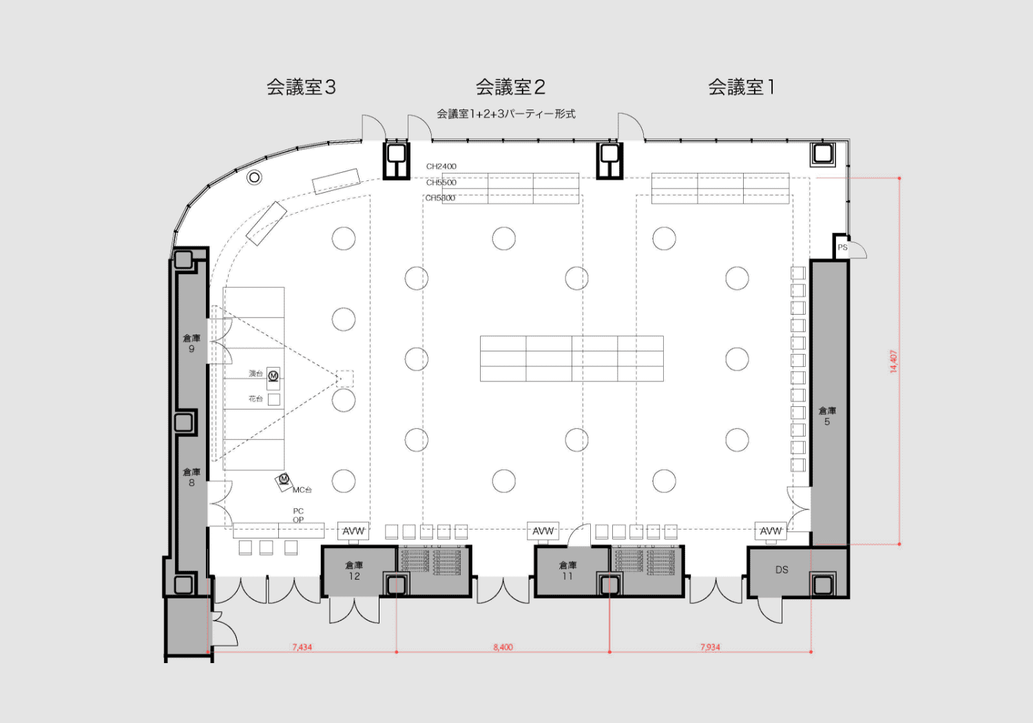
1+2+3
会議室1+会議室2+会議室3
- 面積:398㎡
- 天井高:5.8m
-
拡大する
パーティー形式
-
拡大する
スクール形式:96席+シアター形式:42席 138席
-
拡大する
シアター形式:138席
-
閉じる
閉じる
閉じる